
|
|
Esame 2011:
Calcolo Riduttore Argano a Mano |
||||||||||||||||||||||||
Traccia. (traccia ministero)
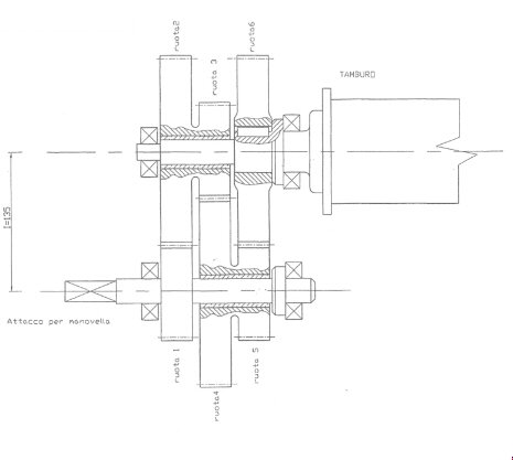
Un argano, azionato manualmente tramite una manovella, utilizza il riduttore rappresentato in figura. Il riduttore realizza tre salti di velocità attraverso l'accoppiamento di 6 ruote dentate a denti dritti come di seguito descritto:
Sono noti i seguenti dati:
Il candidato assumendo con giustificato criterio ogni altro dato occorrente esegua:
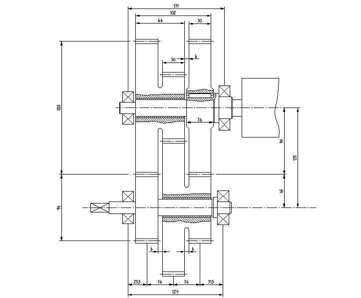
Figura 1: Schema riduttore
Premessa
I dati mancanti, necessari al calcolo, saranno ricavati dal "Manuale di meccanica" della Hoepli
Caratteristiche materiale
Si ricavano le caratteristiche dell'acciaio C40 da bonifica ( pag. I-129)
La
tensione ammissibile sarà:
Diametri primitivi ruote dentate
Siano D1 e D2 i diametri primitivi della ruota 1 e della ruota 2, dalla definizione di rapporto di trasmissione si ottiene e
da quella dell'interasse I
si ha:
e
dalla traccia si ricava che per tutte le coppie di ruote dentate il rapporto di trasmissione è sempre 2, per cui si ottengono i diametri primitivi delle varie ruote dentate:
D3=D1 D5 = D1 D4=D2 D6 = D2
Calcolo dei momenti applicati sulle varie ruote
Sulla ruota 1 è applicato un momento torcente uguale a quello applicato sulla manovella, dal secondo principio della dinamica, per i corpi in rotazione, applicato all'albero 1:
ipotizzando
che la velocità angolare sia costante si ha deriva
il momento agente sulla ruota 2 si calcola utilizzando la relazione da
cui discende che
Analizzando la coppia di ruote 2 e 3 si nota come esse siano solidali tra loro per cui si ha:
sempre con le stesse considerazioni siu ricavano le altre coppie agenti:
Calcolo modulo ruote dentate
Il movimento dell'argano è manuale, quindi la velocità periferica delle varie ruote sarà certamente non elevata. Ipotizzando una rotazione della manovella per ogni secondo si ha una velocità angolare
la velocità periferica della ruota a diametro inferiore è:
essendo la velocità periferica molto bassa il calcolo del modulo si effettuerà solo per resistenza e non per usura utilizzando la relazione
a pagina I127 del manuale
dove:
U= Z2 / Z1
si sceglie come numero di denti della ruota a diametro inferiore z = 16
la y risulta essere 0,295
Il calcolo del modulo si effettua sulla ruota dentata a diametro inferiore (anche numero di denti inferiore) Il calcolo si farà sulla ruota 5
si deve scegliere come modulo m=3 mm
è necesario scegliere questo modulo in quanto con un modulo diverso non si rispettano i dati relativi alle dimensioni delle ruote e del dente)
Scelta dimensioni
Come prima cosa si disegna l'albero con le opportune quotature ricavate direttamente dal disegno fornito.
Figura 2: Dimensioni albero
Dimensionamento albero condotto
Dal disegno, allegato alla traccia, si deve dedurre che il tamburo di avvolgimento della fune sia montato direttamente sull'albero condotto, non si capisce però se esso è a sbalzo o è momtato tra due appoggi, non è dato alcuna indicazione sul diametro e la lunghezza del tamburo e sui carichi da sollevare, da questo scaturisce la difficoltà di valutare l'ampiezza delle forze agenti e le azioni che esse impongono sull'albero.
Il calcolo dell'albero condotto sarà fatto in modo solo approssimato tenendo conto della sola coppia di torsione.
É necessario calcolare la tam si ricava il diametro minimo:
Se adesso si ipotizza che il tamburo sia applicato a sbalzo e che esso abbia un diametro di 100 mm è possibile ricavare il carico massimo sollevabile
Se, ancora, si ipotizza che questo carico agisca in una sezione distante 70 mm dal cuscinetto di destra (sezione B), si ottiene facilmente il momento flettente agente nella sezione B è:
in questo caso il diametro dovra essere:
da cui
il diametro dovrà essere:
effettuando le opportune sostituzioni:
si ottiene il diametro minimo finale
Nella sezione considerata è calettato un cuscinetto, per cui si scegle come diametro
Ildiametro della sezione di calettamento dell ruota 6 avrà invece diametro di 25 mm per tener conto della cava della linguetta.
Il diametro di calettamento delle ruote 4 e 5 sarà anch'esso di 20 mm, mentre infine quello del cuscinetto di sinistra sarà di 17 mm.
Questi due diametri sono stati scelti tenendo conto della bronzina e del cuscinetto a sfera calettati nelle due sezioni, per cui dovranno rispettare le dimensioni previste per i cuscinetti.
|
|||||||||||||||||||||||||
|
Copyright(c) 2013 Carmine Napoli Tutti i diritti riservati. |
|||||||||||||||||||||||||